Zero Carbon Group

Office Furniture Design & Space Planning

The Client's Brief

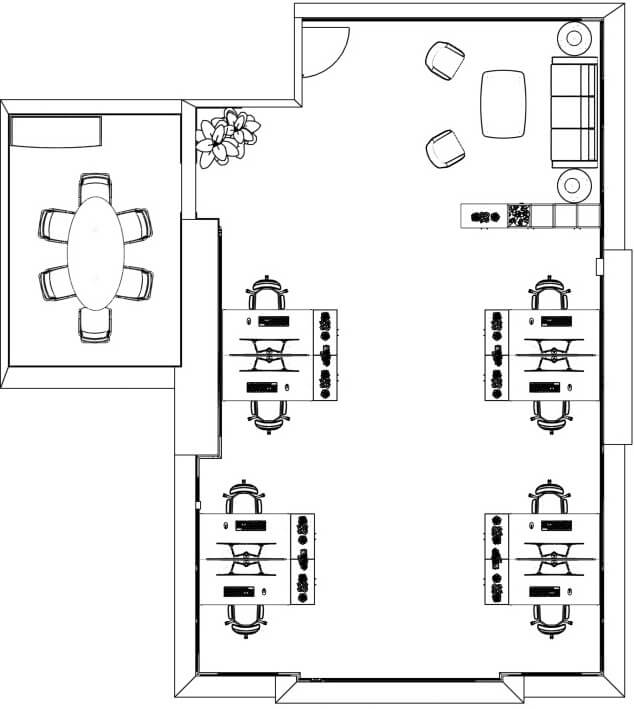
Zero Carbon Group recently approached us following a recommendation for our expertise in office design. They required our support in developing office furniture and space plans to comfortably accommodate eight staff members at their Manchester office. Alongside this, they were seeking a creative interior design solution to elevate the workspace, creating a welcoming and professional environment that supports hybrid working while also providing an impressive setting for customer visits.

LOCATION –  ZERO CARBON GROUP, MANCHESTER

PROJECT TYPE – OFFICE FURNITURE DESIGN & SPACEPLAN

SECTOR – RENEWABLE ENERGY

OCCUPANCY CAPACITY – 8 STAFF MEMBERS

Space Planning - Floorplans

workspace floor plan design for renewable energy company office in Manchester
office furniture space planning layout for renewable energy company office in Manchester

Visualisations - 3D Renders

Final Article - Project Photos

YouTube
LinkedIn
Instagram

Request a call back from the Bullock & Bosson team.

By submitting your information into this form you agree to receiving communication from Bullock and Bosson. For more information visit our Privacy Policy page.

⚡ Cached with atec Page Cache