Warrington Audi

Office Furniture Design & Space planning Project

The Client's Brief

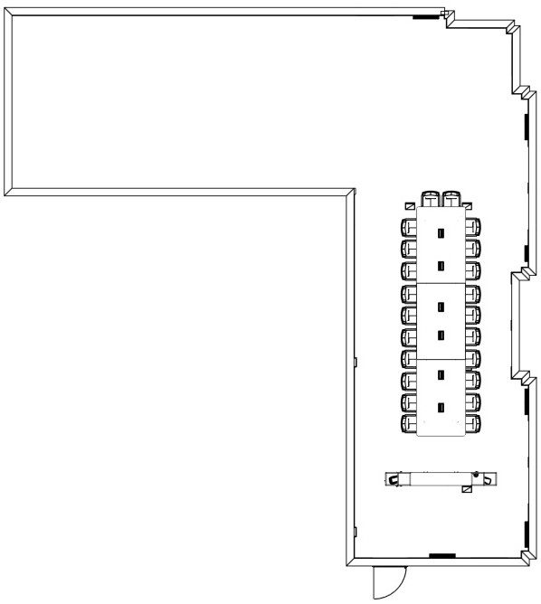
Warrington Audi recently approached us following a recommendation for our expertise in office design. They required our support in developing meeting room furniture and space plans that would comfortably accommodate 22 staff members. This involved designing a bespoke 7.5 metre long table, using our signature Y leg table frame design. In addition, they were seeking a creative interior design solution to elevate the meeting room, transforming it into a welcoming and inspiring environment for when local Audi dealerships come together for group meetings.

LOCATION –  WARRINGTON AUDI, WARRINGTON

PROJECT TYPE – OFFICE FURNITURE DESIGN & SPACEPLAN

SECTOR – AUTOMOTIVE

OCCUPANCY CAPACITY – 22 STAFF MEMBERS

Space Planning - Floorplans

Office furniture floorplan layout created for Audi Warrington workspace design
Space planning design for Audi Warrington office furniture layout

Visualisations - 3D Renders

Finished Article - Project Photo

YouTube
LinkedIn
Instagram

Request a call back from the Bullock & Bosson team.

By submitting your information into this form you agree to receiving communication from Bullock and Bosson. For more information visit our Privacy Policy page.

⚡ Cached with atec Page Cache