Power Supplies Group (Walsall)

Office Furniture Design & Space Planning

The Client's Brief

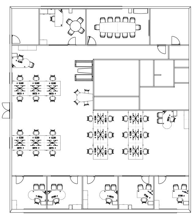
Power supplies group in walsall recently got in touch having been recommended for our expertise in office furniture design. They sought our assistance in developing office furniture space plans that would comfortably accommodate 30 staff, along with creative interior design solution for their new office. Their vision was to create a fully open-plan workspace featuring bench desks, with thoughtfully designated areas for different departments. Additionally, they wanted to incorporate breakout areas where staff from various departments can come together to collaborate and share ideas, fostering a dynamic work environment.

PROJECT TYPE – OFFICE FURNITURE DESIGN & SPACEPLAN

SECTOR – ENERGY

OCCUPANCY CAPACITY – 30 STAFF MEMBERS

Space Planning - Floorplans

Office furniture floorplan design for PSG Power Supplies Group workspace in Walsall

Visualisations - 3D Renders

YouTube
LinkedIn
Instagram

Request a call back from the Bullock & Bosson team.

By submitting your information into this form you agree to receiving communication from Bullock and Bosson. For more information visit our Privacy Policy page.

⚡ Cached with atec Page Cache