OCU Group

Office Furniture Design & Space Planning Project

The Client's Brief

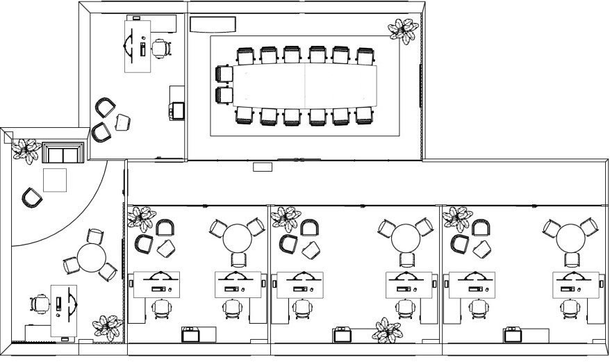
OCU Group recently got in touch having been recommended for our expertise in office furniture design for their executive offices. They sought our assistance in developing office furniture space plans that would comfortably accommodate 8 executives, along with creative interior design ideas to make their Stockport office a standout workspace for their team of executives.

LOCATION –  OCU GROUP, STOCKPORT

PROJECT TYPE – OFFICE FURNITURE DESIGN & SPACEPLAN

SECTOR – UTILITIES CONTRACTOR

OCCUPANCY CAPACITY – 8 STAFF MEMBERS

Space Planning - Floorplans

Office furniture space planning layout created for OCU Group office project in Stockport
Office furniture floorplan design for OCU Group workspace installation in Stockport

Visualisations - 3D Renders

YouTube
LinkedIn
Instagram

Request a call back from the Bullock & Bosson team.

By submitting your information into this form you agree to receiving communication from Bullock and Bosson. For more information visit our Privacy Policy page.

⚡ Cached with atec Page Cache