Multi-Temp UK

Office Furniture Design & Space Planning

The Client's Brief

Multi-Temp UK recently got in touch having been recommended for our expertise in office design. They sought our assistance in developing office furniture space plans that would comfortably accommodate 23 staff, along with creative interior design solution aimed at creating a modern, comfortable environment that would inspire their loyal team to relocate and impress customers and suppliers alike.

LOCATION –  MULTI-TEMP UK LTD, CANNOCK

PROJECT TYPE – OFFICE FURNITURE DESIGN & SPACEPLAN

SECTOR – AIR CONDITIONING

OCCUPANCY CAPACITY – 23 STAFF MEMBERS

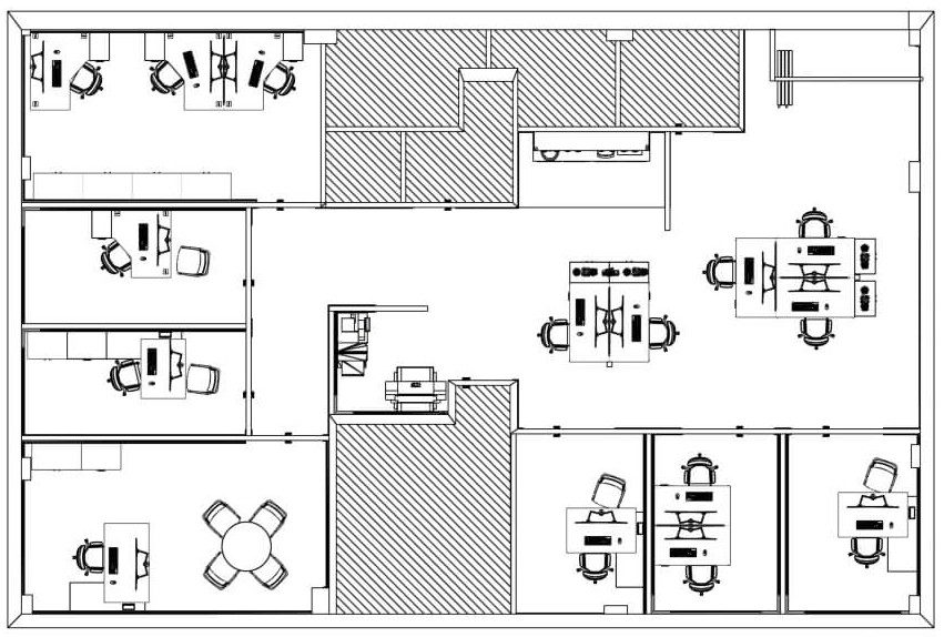
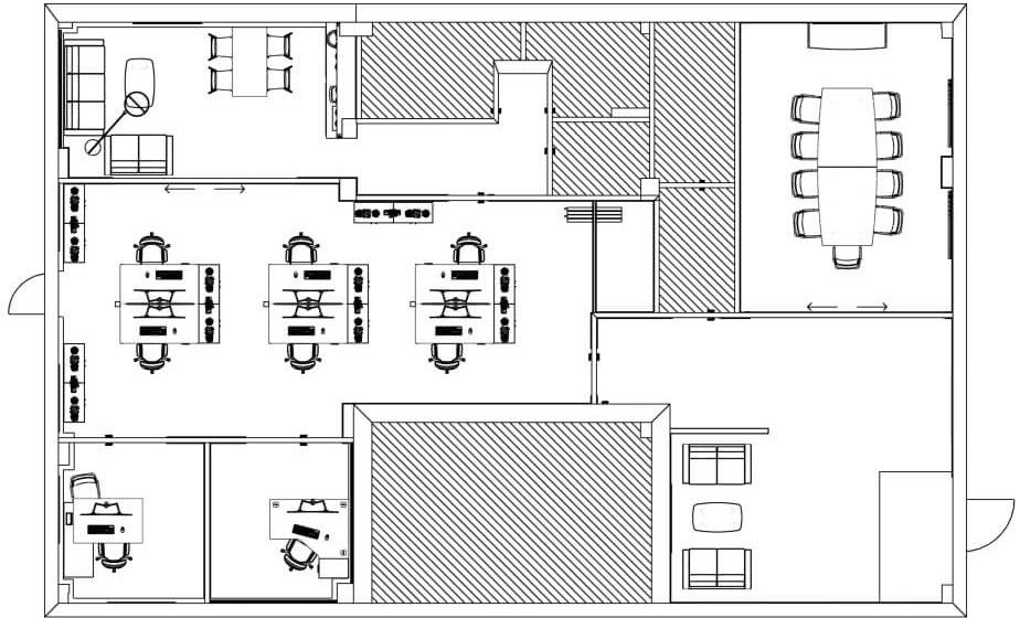
Space Planning - Floorplans

Office furniture floorplan design for Multi-Temp HVAC company workspace ground floor in Cannock
Office furniture spaceplan layout for Multi-Temp air conditioning company ground floor office in Cannock
First floor office furniture floorplan created for Multi-Temp Cannock office workspace
First floor office furniture space planning layout for Multi-Temp air conditioning company in Cannock

Visualisations - 3D Renders

YouTube
LinkedIn
Instagram

Request a call back from the Bullock & Bosson team.

By submitting your information into this form you agree to receiving communication from Bullock and Bosson. For more information visit our Privacy Policy page.

⚡ Cached with atec Page Cache