MK Performance Group

Office Furniture Design & Space Planning

The Client's Brief

MK Performance Group recently got in touch after being recommended for our expertise in office furniture design. As a leading supplier of office furniture in Manchester, they approached us to develop detailed space plans that would comfortably accommodate their team. Alongside the furniture layout, we delivered a creative interior design solution to elevate their office space, creating a welcoming and flexible environment for visitors and hybrid staff working on site throughout the week.

PROJECT TYPE – OFFICE FURNITURE DESIGN & SPACEPLAN

SECTOR – AUTOMOTIVE

Space Planning - Floorplans

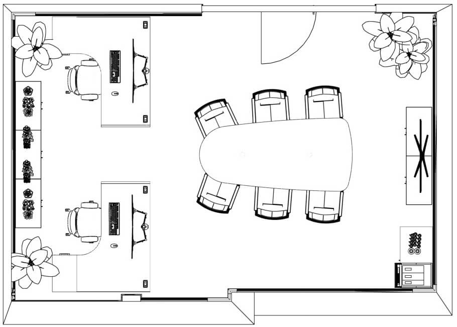
office furniture layout design for manchester automotive dealership office
office furniture floorplan design for manchester automotive dealership office

Visualisations - 3D Renders

Final Artical - Project Photos

YouTube
LinkedIn
Instagram

Request a call back from the Bullock & Bosson team.

By submitting your information into this form you agree to receiving communication from Bullock and Bosson. For more information visit our Privacy Policy page.

⚡ Cached with atec Page Cache