LOBO SYSTEMS

Office Furniture Design & Space Planning

The Client's Brief

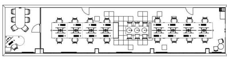
Lobo Systems recently got in touch having been recommended for our expertise in office furniture design & space planning for their office in Derby. They sought our assistance in developing office furniture space plans that would comfortably accommodate 17 staff, along with creative interior design solution aimed at elevating the office and increasing desk numbers to support their company growth. 

LOCATION –  LOBO SYSTEMS, DERBY

PROJECT TYPE – OFFICE FURNITURE 

SECTOR – MANUFACTURING

OCCUPANCY CAPACITY – 17 STAFF MEMBERS

Space Planning - Floorplans

Hidden Line

Realistic

Visualisations - 3D Renders

YouTube
LinkedIn
Instagram

Request a call back from the Bullock & Bosson team.

By submitting your information into this form you agree to receiving communication from Bullock and Bosson. For more information visit our Privacy Policy page.

⚡ Cached with atec Page Cache