F2G

Office Furniture Design & Space Planning

The Client's Brief

F2G recently got in touch having been recommended for our expertise in office design. They sought our assistance in developing office furniture space plans for their office in manchester that would comfortably accommodate 8 staff, along with creative interior design solution aimed at elevating their office & laboratory space making it a welcoming environment for their staff & visitors alike. 

LOCATION –  F2G LTD, MANCHESTER

PROJECT TYPE – OFFICE FURNITURE DESIGN & SPACEPLAN

SECTOR – PHARMACEUTICAL

OCCUPANCY CAPACITY – 8 STAFF MEMBERS

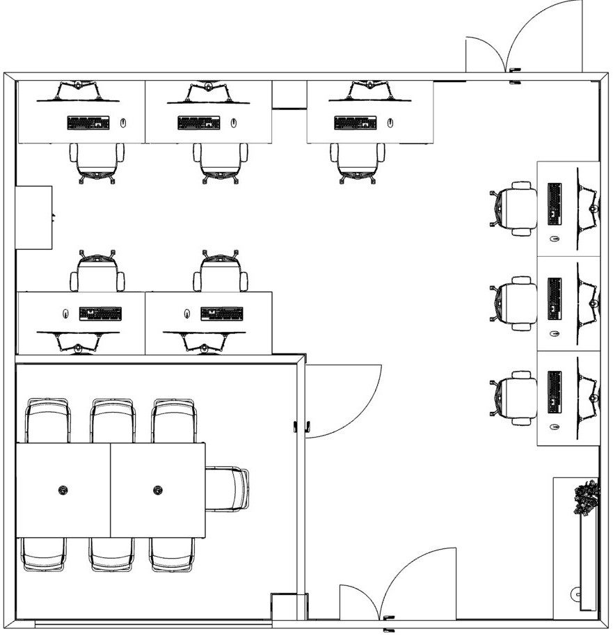
Space Planning - Floorplans

Office furniture space planning layout created for F2G pharmaceutical company office in Manchester
Office furniture floorplan design for F2G pharmaceutical company workspace in Manchester

Visualisations - 3D Renders

YouTube
LinkedIn
Instagram

Request a call back from the Bullock & Bosson team.

By submitting your information into this form you agree to receiving communication from Bullock and Bosson. For more information visit our Privacy Policy page.

⚡ Cached with atec Page Cache