Currie Young

Office Furniture Design & Space Planning

The Client's Brief

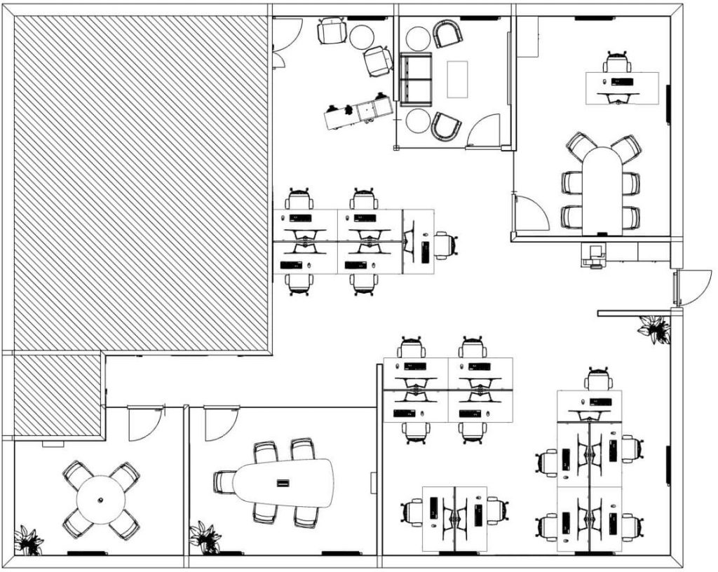
Currie Young recently got in touch having been recommended for our expertise in office furniture design for their Stoke Office. They sought our assistance in developing office furniture space plans that would comfortably accommodate 17 staff, along with creative interior design solution aimed at elevating the experience for their clients and support their apprenticeship scheme initiative.

LOCATION –  CURRIE YOUNG, STOKE-ON-TRENT

PROJECT TYPE – OFFICE FURNITURE DESIGN & SPACEPLAN

SECTOR – INSOLVENCY

OCCUPANCY CAPACITY – 17 STAFF MEMBERS

Space Planning - Floorplans

office floor plan design for insolvency business workspace in Stoke-on-Trent
office furniture space planning layout for insolvency practitioners workspace in Stoke-on-Trent

Visualisations - 3D Renders

YouTube
LinkedIn
Instagram

Request a call back from the Bullock & Bosson team.

By submitting your information into this form you agree to receiving communication from Bullock and Bosson. For more information visit our Privacy Policy page.

⚡ Cached with atec Page Cache