Culina Logistics

Canteen Design & Space Planning

The Client's Brief

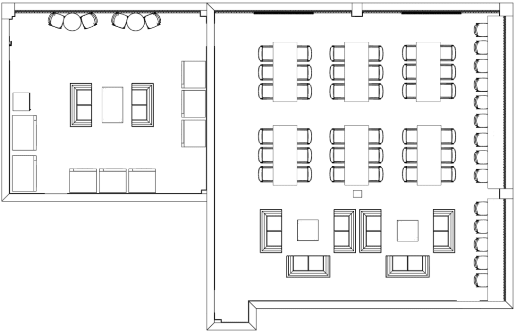
Culina Logistics recently got in touch having been recommended for our expertise in office design. They sought our assistance in developing canteen furniture space plans that would comfortably accommodate 70 staff, along with creative interior design solution aimed at elevating their canteen space & making it a welcoming environment for their drivers & warehouse crew.

LOCATION –  CULINA LOGISTICS, STAFFORD

PROJECT TYPE – CANTEEN FURNITURE DESIGN & SPACEPLAN

SECTOR – LOGISTICS

OCCUPANCY CAPACITY – 70 STAFF MEMBERS

Space Planning - Floorplans

Canteen furniture floorplan design for Culina Logistics logistics company facility in Stafford
Canteen furniture space planning layout created for Culina Logistics staff dining area in Stafford

Visualisations - 3D Renders

YouTube
LinkedIn
Instagram

Request a call back from the Bullock & Bosson team.

By submitting your information into this form you agree to receiving communication from Bullock and Bosson. For more information visit our Privacy Policy page.

⚡ Cached with atec Page Cache