Compleat Food Group

Canteen Design & Space Planning

The Client's Brief

Compleat Food Group recently got in touch having been recommended for our expertise in canteen design. They sought our assistance in developing canteen furniture space plans that would comfortably accommodate 60 staff, along with creative interior design solution aimed at elevating their canteen space & making it a welcoming & relaxing environment for their factory & office staff in their breaks.

LOCATION –  COMPLEAT FOOD GROUP, TELFORD

PROJECT TYPE – CANTEEN FURNITURE DESIGN & SPACEPLAN

SECTOR – FOOD MANUFACTURER

OCCUPANCY CAPACITY – 60 STAFF MEMBERS

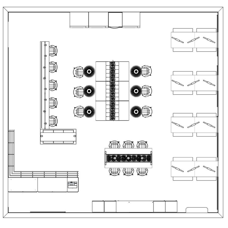
Space Planning - Floorplans

Canteen space planning design for Compleat Food Group food manufacturing facility near Telford
Canteen furniture floorplan layout created for Compleat Food Group staff dining area near Telford

Visualisations - 3D Renders

YouTube
LinkedIn
Instagram

Request a call back from the Bullock & Bosson team.

By submitting your information into this form you agree to receiving communication from Bullock and Bosson. For more information visit our Privacy Policy page.

⚡ Cached with atec Page Cache