Andron Facilities Management

Office Refurbishment Project

The Client's Brief

Andron Facilities Management recently got in touch having been recommended for our expertise in office design. They sought our assistance in developing office furniture space plans that would comfortably accommodate 11 staff at their Warrington office, along with creative interior design solution aimed at elevating the office & meeting areas to make it a wlcoming space for office staff & visitors.

PROJECT TYPE – OFFICE REFURBISHMENT

SECTOR – FACILITIES MANAGEMENT

OCCUPANCY CAPACITY – 11 STAFF MEMBERS

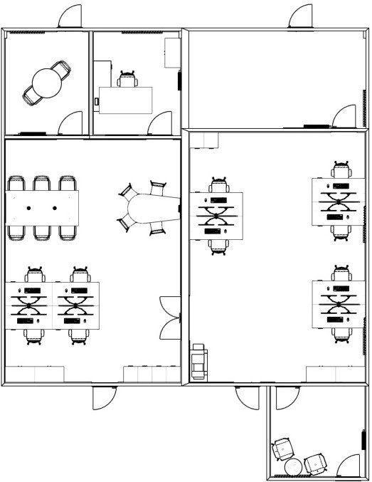
Space Planning - Floorplans

Office furniture floorplan design for Andron Facilities Management office project in Warrington
Office furniture space planning layout created for Andron Facilities Management office in Warrington

Visualisations - 3D Renders

YouTube
LinkedIn
Instagram

Request a call back from the Bullock & Bosson team.

By submitting your information into this form you agree to receiving communication from Bullock and Bosson. For more information visit our Privacy Policy page.

⚡ Cached with atec Page Cache